Les habitats inclusifs Saint Cyr et Guînes sont des habitats pour personnes épileptiques avec troubles associés situés dans le centre de Rennes. Ils offrent à des personnes handicapées par une épilepsie active un choix de vie qui allie autonomie et accompagnement. Ces réalisations portées par EPI Bretagne en partenariat APF France handicap sont une première en France pour des personnes avec épilepsie pharmaco-résistante et troubles associés.
L’ouverture de Saint-Cyr en juin 2016 puis de Guînes en octobre 2023 a permis l’accueil de 12 personnes côté EPI Bretagne et de 12 côté APF France handicap. Chaque locataire vit dans un appartement individuel au sein d’une résidence de logements sociaux et est soutenu par un dispositif d’accompagnement.

Locataires et aidants
Locataires
Le dispositif met l’accent sur l’autonomie et l’auto-détermination des personnes. Un partenariat avec Néotoa pour Saint-Cyr et Archipel Habitat pour Guînes a été établi. Chaque habitat inclusif est constitué de 12 appartements individuels (6 EPI et 6 APF) et d’un espace commun appelé appartement-ressource, tous adaptés soit au handicap épileptique soit au handicap moteur (et aux deux handicap pour l'espace commun). Les personnes concernées sont locataires de leur appartement auprès de ces deux bailleurs sociaux.

Une réflexion détaillée
Dès 2012, les échanges menés avec les associations pour d’autres handicaps ayant déjà créé un habitat inclusif en Ille et Vilaine et dans d’autres départements bretons ont permis une réflexion détaillée et documentée. Nos projets s’inspirent également des multiples réalisations en matière de « Supported Housing » d’Epilepsy Society, une des plus importantes associations dédiées à l’épilepsie en Grande-Bretagne dont nous avons rencontré les responsables et visité les installations. De même, la création de Guînes s’inspire de notre expérience sur Saint-Cyr.
Un partenariat avec APF France handicap
Une originalité du projet consiste en un partenariat avec APF France handicap qui assure la gestion des dispositifs d’accompagnement et offre un habitat semblable à des personnes handicapées moteur sur les deux sites. Les deux associations se retrouvent sur des valeurs communes, un projet politique pour une société inclusive et une offre de services au plus près des personnes handicapées et de leurs besoins.

Soutiens
Outre le soutien du Conseil départemental d’Ille et Vilaine, de l’APF, de Néotoa, d’Archipel Habitat, les projets ont été élaborés en partenariat avec la MDPH 35, Rennes Métropole et la ville de Rennes.
Description des Habitats inclusifs
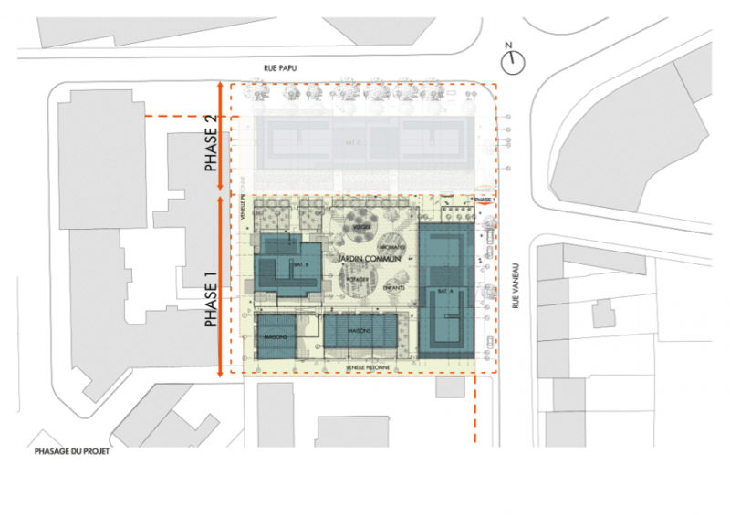
La résidence Saint-Cyr de Néotoa est située au coin de la rue Papu et de la rue Vaneau, celle de Guînes avec Archipel Habitat est située à l’angle du Boulevard de Guînes et de la rue d’Inkermann. Le choix de sites au cœur de Rennes correspond aux besoins des personnes épileptiques en recherche d’autonomie. Les personnes ne pouvant pas conduire, le réseau dense des transports en commun rennais leur permet de pouvoir profiter du bassin d’emploi et de formations. C’est aussi une recommandation de la CNSA afin de permettre à ces personnes de prendre leur place au cœur de la cité.
Dans l’Habitat Saint-Cyr, Néotoa propose six logements, quatre Type 2 d’environ 50 m2 et deux Type 3 de 60 m2 sur un programme de 112 logements avec locaux d’activité. Cinq logements pour le public EPI Bretagne se situent dans le même immeuble que l’appartement ressource, un autre logement se positionne dans l’immeuble voisin. Dans l’Habitat Guînes, Archipel Habitat propose six logements, trois Type 2 et trois Type 3 dans un programme de 50 logements sociaux. L'appartement-ressource se situe dans le même bâtiment.
Chacun des appartements est équipé d’un séjour avec cuisine ouverte, d’une chambre, d’une salle d’eau, de WC. Chaque pièce est adaptée au handicap épileptique avec par exemple, des douches avec mitigeur plutôt que des baignoires, des angles arrondis, des cloisons internes et des murs appropriés, du verre feuilleté…Les adaptations ont été financées par Rennes Métropole. Les appartements sont meublés et décorés par les locataires.
L’appartement-ressource
L’appartement-ressource est indispensable au bon fonctionnement du dispositif et assure les différentes fonctions suivantes :
-
espace de convivialité pour tous les usagers ;
-
espace pour la sécurité du public épileptique aux périodes de vulnérabilité (préparation et prise des repas, si souhaité) ;
-
espace de travail pour l'animateur-coordinateur et pour les intervenants.
Le dispositif d’accompagnement
Pour chaque habitat, le dispositif d’accompagnement est composé d’un animateur-coordinateur employé par APF France handicap et d’aides à domicile salariés de services d’aide et d’accompagnement à domicile (SAAD) : l’ADMR 35 pour l’Habitat Saint-Cyr et ASSIA-Réseau UNA pour l’Habitat Guînes. Des intervenants sont présents 24H sur24H, 365 jours par an. Pour chaque habitat, le poste d’animateur-coordinateur est financé par l’Aide à la Vie Partagée donnée à chaque locataire par le Conseil départemental. Par ailleurs, une mutualisation d’une partie de la Prestation de Compensation du Handicap donnée aux locataires par la CDAPH35 (accord MDPH) permet de financer le Service d’aide à domicile.
Conditions d’accès
Le projet s’adresse à des adultes, âgés d’au moins 18 ans sans limite d’âge. La priorité est que les locataires puissent rester dans leur appartement et bénéficier d’un accompagnement adéquat le plus longtemps possible. La capacité à travailler en milieu ordinaire ou en milieu adapté ou à développer un projet personnel de vie sociale est un critère de participation au projet.est un critère de participation au projet. D’autre part, il convient d’être éligible au logement social. Cette éligibilité est fonction, entre autres, de conditions de ressources.

Photo Habitat Guînes